【売土地】城陽市富野西垣内 1号地 1740万円 ※自社所有物件

【売土地】城陽市富野西垣内 1号地 1740万円 ※自社所有物件

センチュリー21メイクス 自社取り扱い物件をご紹介します!
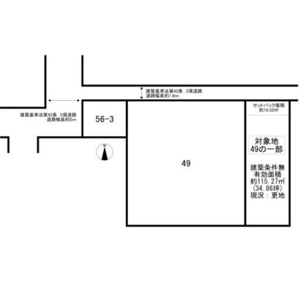
【売買・建築条件無売土地】
城陽市富野西垣内1号地
1740万円・37.99坪・現状:更地
※ 詳細については下記URLをご確認ください。

↓下記バナー(画像)をクリック頂きますとこの物件の各種ポータルサイトの掲載情報をご覧いただけます。
CENTYRY21 SUUMO スーモ athome アットホーム
yahoo!不動産

お客様駐車場のご案内

関連記事